calldocumentfacebookmessagemypartnerwindowsapplegoogleplayworkerroutecoinspinterestplaysearchsmartphonetwittercaraccordeonvideoarrowarrowdownloaddownloaduploadsection_scrollerglobemapIcon-Shop-Websitecontactenergyhomebridgeshighrisetunnelmininghousearrow-uparrow-downarrow-leftarrow-leftarrow-circle-rightchevron-right-circleuserexternlinkcartissuuclosekeystarweb

Saturn Tower

Österreich

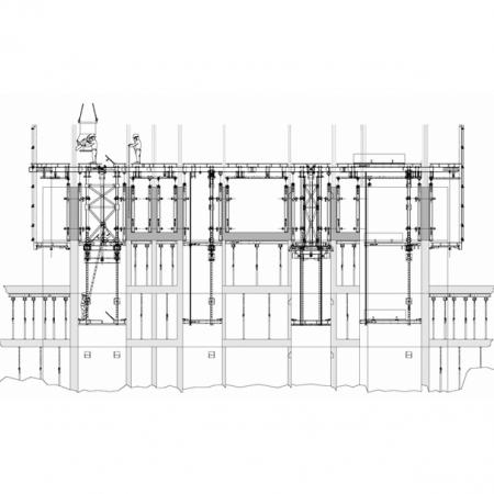
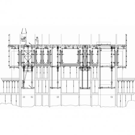
Mit der Plattform SCP wurde der Rohbau des Saturn Tower in der Vienna Donau City in Rekordzeit errichtet.

Zurück zur Übersicht

Projektdaten

Fertigstellungsjahr
2003
Projektdauer
7 Monate
Land
Österreich
Ort
Wien
Umsetzung
ARGE: Fa. Granit, Fa. Lieb Bau Weiz, Fa. Herzog
Bauwerk
Büro-/Verwaltungs- und Mehrzweckgebäude
Bauwerksart
Hochhäuser

Schacht/Kern

Ausführung
Kern vorlaufend
Anzahl Stockwerke
27
Bauwerkshöhe
90 m
Höhe Betonierabschnitte
3,42 m
Taktzeit
4 -Tages-Takt